Gulliver Prep, upper campus
Zyscovich Architects
Education Design Studio
Location: Miami, FL
As an Architecture Designer, I have had the opportunity to contribute to numerous public and independent school projects in the state of Florida. My role encompasses a wide array of responsibilities, including but not limited to 3D conceptualization, visualization, and the entire production process. From the inception of proposals and participation in competitive ventures to guiding projects through each phase of design and production, as well as providing support during construction administration. Working alongside my dedicated team, we diligently collaborate with vendors and consultants, produce permit drawings, develop client presentations, and generate clear, visually engaging graphics to facilitate informed decision-making processes.
Softwares: Revit, AutoCAD, SketchUp and Lumion
Rendering of the New Upper Campus with the new buildings and landscape, along with the new sport complex perfectly immersed with the Existing Campus
Phase 1: Fields and Roadway Project
The Academic Building - Phase 2
Academic Building - Courtyard
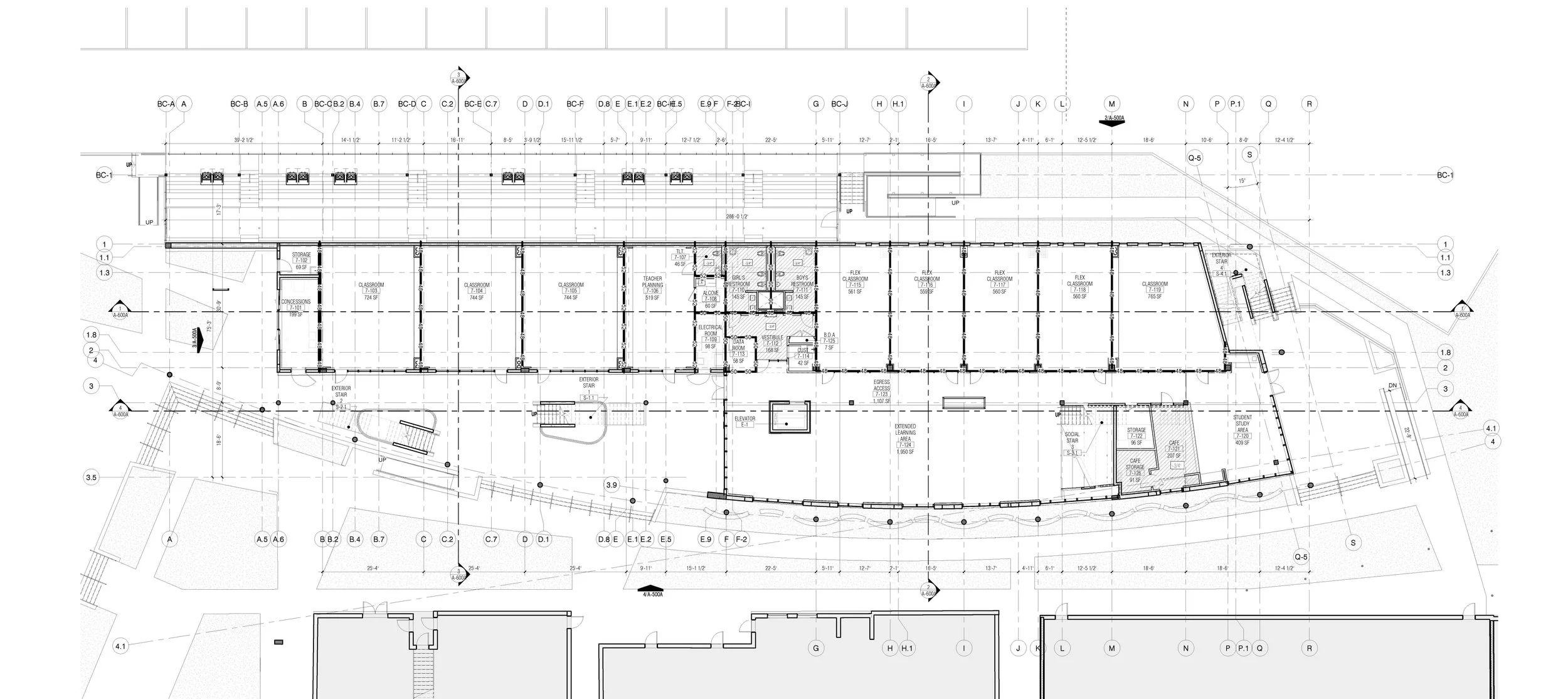
The Academic Building- First Floor Plan
The Academic Building- Entrance
The Academic Building- Second Floor Plan
The Academic Building- Lobby
Phase 3 Gym/Garage Building - First Floor Plan
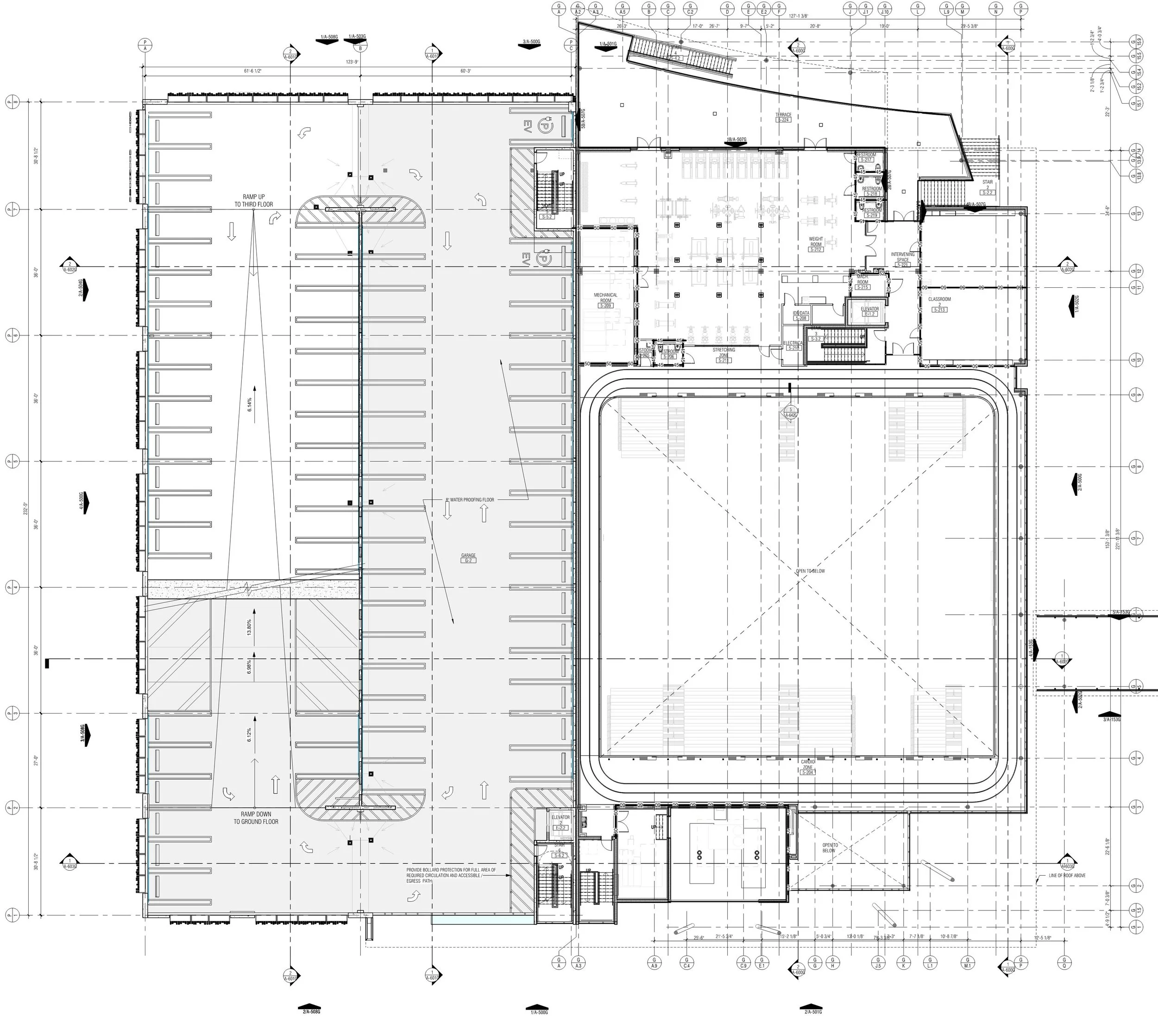
Phase 3 Gym/Garage Building- Second Floor Plan
Gym/Garage South facade
Gym Lobby entrance
Gym Courtyard blending into the existing Campus
New Gym Courts